
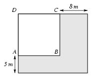
\exo {Aires de rectangles} Dans le dessin ci-dessous, $ABCD$ est un carré et l'aire du domaine colorié est $183\m ^2$. Calculer $AB$. \def \epspath {% $HOME/tex_doc/lycee/database/2nd/algebre/equations/} $$ \superboxepsillustrate {geom_005.ps} $$ \finexo \corrige {} Appelons $x$ la distance $AB$. L'aire totale du rectangle dessiné est donc $(x+8) \times (x+5)$, alors que l'aire du carré $ABCD$ est $x^2$. Sachant que l'aire totale est égale à l'aire du carré $ABCD$ plus l'aire du domaine colorié, il vient $$ (x+8) \times (x+5) = x^2 + 183. $$ Et la résolution de cette équation donne $$ x^2 + 13 x + 40 = x^2 + 183 \qquad \Longleftrightarrow \qquad 13 x = 143 \qquad \Longleftrightarrow \qquad x = {143\over 13} \qquad {\rm soit} \qquad \dresultat {x = 11} $$ \fincorrige